Waipiko Landing,
Te Awamutu,
Stage 1, Lot 03
Waipiko Landing in Te Awamutu is perfectly positioned for convenience and connectivity.
Only a 30-minute drive from Hamilton, 15 minutes from Hamilton Airport, 20 minutes from Cambridge, an hour and a half from Tauranga, and just under two hours from Auckland, Waipiko Landing offers easy access to major centres while maintaining the charm of life in a vibrant community.
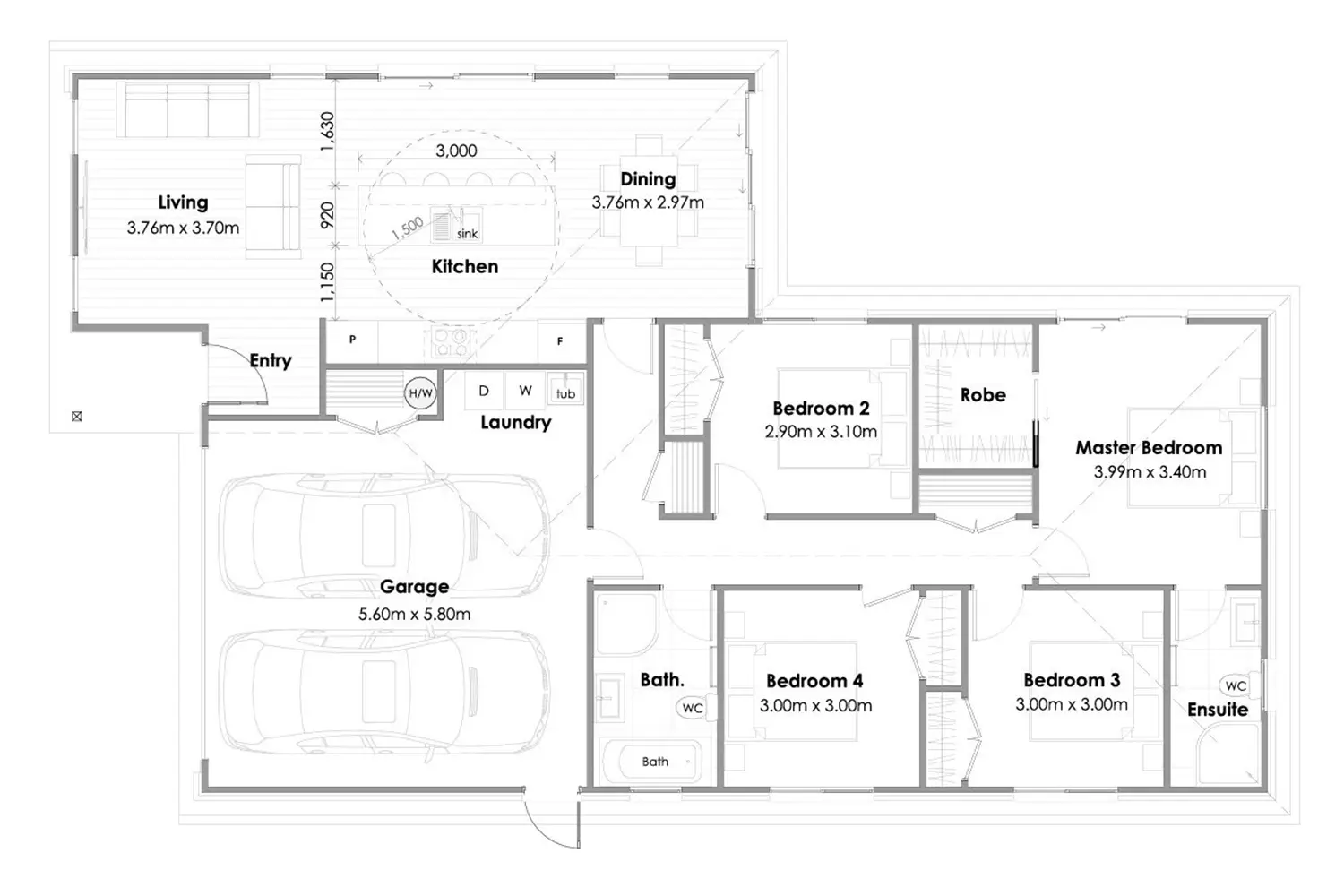
This modern and inviting 4-bedroom, 2-bathroom home in Waipiko Landing offers a perfect blend of style and comfort. With 163 square meters of well-designed living space on a 502 square meter section, this residence is ideal for family living.
The open-plan layout seamlessly connects the spacious living and dining areas, making it perfect for both daily family life and entertaining guests.
The master suite is a standout feature, providing a generous bedroom space and a private en-suite bathroom. Come and visit our show home today at 952 Cambridge Road.
Key features
Package Enquiry
To quickly send our sales team your interest in this package, please provide your contact details and we will be in touch.
All included features
Prime Stone Bench Top
Fujitsu Heat Pump
Engineered Concrete Slab
Vented Range Hood
Full Landscape Package - As per plans including fencing, plants and concrete patios
Double Glazed Tinted Windows
LED Lighting
Premium Tapware
Miles Nelson Door Handles
Slimline Light Switches
90mm Skirtings
Bosch or Westinghouse Appliances
Smoke Alarms
Blinds














