East Quarter, Papamoa,
Stage 4,
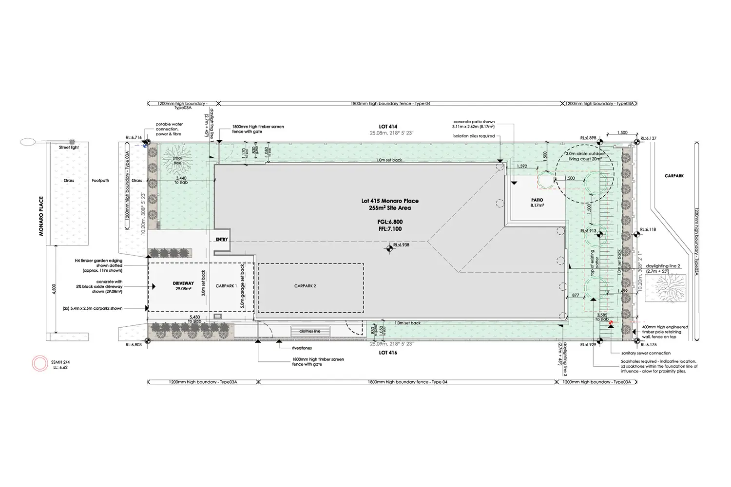
Lot 415
The slab has just gone down for this wonderful home and construction is due to be completed March next year !
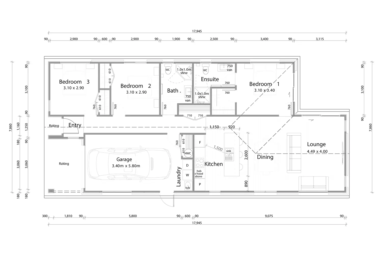
This high spec 3 bedroom 2 bathroom home and land package is currently under construction and designed to deliver effortless modern living in a prime Papamoa location.
Enjoy a spacious open-plan kitchen, dining, and living area that creates a welcoming hub for family life and easy entertaining. With quality finishes throughout, this home promises comfort, style, and long-lasting durability.
The section will be fully landscaped, providing a complete, move-in-ready package the moment construction is complete. Low-maintenance outdoor spaces mean you can enjoy more time living and less time working.
Positioned in a sought-after pocket of Golden Sands, you’ll be just moments from the upcoming Town Centre, local amenities, and everything this thriving coastal community has to offer.
Key features
Package Enquiry
To quickly send our sales team your interest in this package, please provide your contact details and we will be in touch.
All included features
Prime Stone Bench Top
Fujitsu Heat Pump
Engineered Concrete Slab
Vented Range Hood
Full Landscape Package - As per plans including fencing, plants and concrete patios
Double Glazed Tinted Windows
LED Lighting
Premium Tapware
Miles Nelson Door Handles
Slimline Light Switches
90mm Skirtings
Bosch or Westinghouse Appliances
Smoke Alarms
Blinds














